
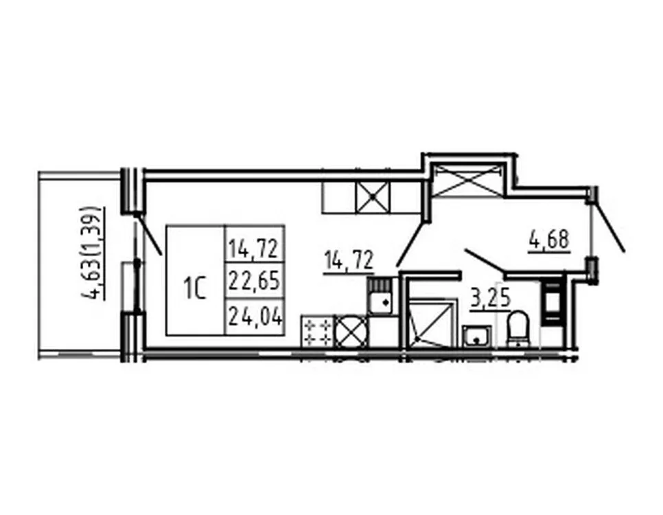
Продается просторная квартира в ЖК BEREG.Курортный (БЕРЕГ.Курортный), который находится по адресу Санкт-Петербург город, Сестрорецк, Санкт-Петербург, Санкт-Петербург, Сестрорецк, улица Инструментальщиков. Площадь лота - 24 м², стоимость - 10.0 млн рублей. Квартира находится на 5-этаже 5-этажного дома. Срок сдачи корпуса - II-кв. 2024 г.. Квартира отличается современной удобной планировкой - площадь кухни - N, площадь комнат - N. Звоните, чтобы узнать подробнее!
В ЖК BEREG.Курортный (БЕРЕГ.Курортный) доступен широкий выбор ипотечных программ с начальной ставкой от 18%. Расчёт носит исключительно информационный характер и не является публичной офертой.
