
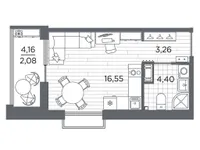
Продается просторная квартира в ЖК Респект, который находится по адресу Санкт-Петербург город, Калининский, Санкт-Петербург, р-н Калининский, Пискарёвка, Полюстровский проспект, 87. Площадь лота - 26,3 м², стоимость - 11.1 млн рублей. Квартира находится на 3-этаже 13-этажного дома. Срок сдачи корпуса - II-кв. 2027 г.. Квартира отличается современной удобной планировкой - площадь кухни - 6,6 м², площадь комнат - 10 м². Звоните, чтобы узнать подробнее!
В ЖК Респект доступен широкий выбор ипотечных программ с начальной ставкой от 18%. Расчёт носит исключительно информационный характер и не является публичной офертой.
